от
Нашли дешевле?
Наличие уточняйте у наших менеджеров
Цены
Траверса ТМ-59 (Zn)
Траверса ТМ-59 (эмаль)
Описание
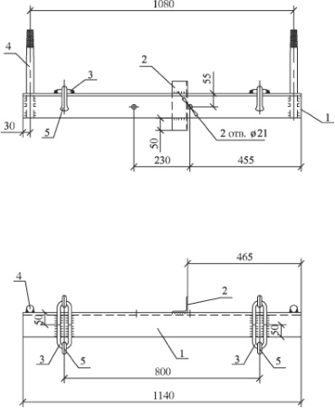
Траверсы ТМ-59 (проект 27.0002-24) являются надежными устройствами для крепления проводов воздушных линий 10 кВ во время проведения и установки промежуточных опор.
Крепление траверсы ТМ-59 на стойках осуществляется только с применением хомутов определенных типов. На стойки типа СВ105 траверсы крепятся с использованием хомутов Х-1, а к стойкам типа СВ110 при помощи хомутов Х-42.
Изготавливаются траверсы ТМ-59 из такого прочного материала как углеродистая сталь. На поверхность траверс наносится стойкое лаковое покрытие (лак БТ-577), что придает изделию необходимые антикоррозийные свойства и обеспечивает долговечность работы.
Вес: 21.8 кг
Спецификация траверсы ТМ-59:
| ПОЗИЦИЯ | НАИМЕНОВАНИЕ ДЕТАЛИ | КОЛИЧЕСТВО | МАССА, КГ |
| 1 |
Уголок 100х100х8 ГОСТ 8509-83 L=1140 |
1 | 21.8 |
| 2 | Круг 16 ГОСТ 2590-88 L=254 | 4 | |
| 3 |
Cерьга С 7-16 |
4 | |
| 4 | Круг 30 ГОСТ 2590-88 L=360 | 2 | |
| 5 | Уголок 63х63х5 ГОСТ 8509-83 L=200 | 1 |
