от 10 221 ₽
Нашли дешевле?
Наличие уточняйте у наших менеджеров
Цены
Траверса ТМ-52 (Zn)
16 862 ₽
/шт Траверса ТМ-52 (эмаль)
10 221 ₽
/шт
Описание
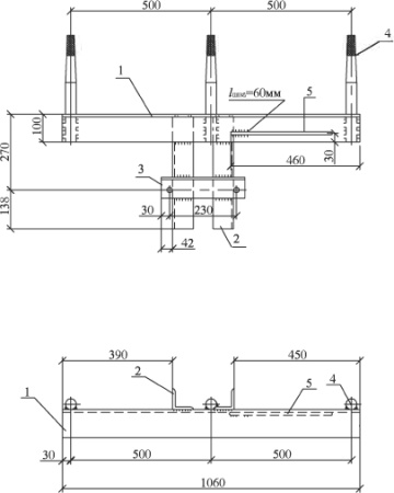
Траверсы ТМ-52 выпускается по типовому проекту 27.0002-17
Траверса ТМ-52 необходима для крепления провода на опорах при монтаже высоковольтных вохдушных ЛЭП напряжением 10 кВ.
Для каждого из типов стоек, на которые устанавливается траверса, существуют соответствующие крепежные хомуты. Хомут Х-1 используется для крепления траверсы к стойке СВ105, а хомут Х-42 - к стойке СВ110. Хомут заказывается отдельно от траверсы.
При изготовлении траверсы ТМ-52 применяется углеродистая сталь, имеющая хорошие механичсекие свойства. Необходимое для длительной эксплуатации защитное антикоррозионное покрытие реализуется путем нанесения битумного лака типа ВТ-577..
Вес: 33,4 кг
Спецификация траверсы ТМ-52:
| ПОЗИЦИЯ | НАИМЕНОВАНИЕ ДЕТАЛИ | КОЛИЧЕСТВО | МАССА, КГ |
| 1 | Уголок 100х100х8 ГОСТ 8509-83 L=1160 | 1 | 33,4 |
| 2 | Уголок 75х75х8 ГОСТ 8509-83 L=400 | 2 | |
| 3 | Уголок 75х75х8 ГОСТ 8509-83 L=290 | 4 | |
| 4 |
Круг 10 ГОСТ 2590-88 L=360 |
3 | |
| 5 | Круг 38 ГОСТ 2590-88 L=380 | 1 |
