Документы
a7b76d90cdf1601e46971bb56cb8d2dc
74,5 кб
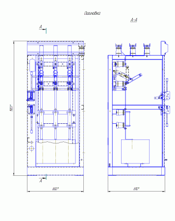
Рабочее напряжение, В
6000(10000)
Серия камеры
КСО-386
Схема исполнения
11-400
Номинальный ток главных цепей, А
400
Тип коммутационного аппарата
Разъединитель РВЗ-10
Тип трансформатора
3хЗНОЛ-10(6)
Схема исполнения, назначение
трансформатор напряжения
Габаритные размеры ДхШхВ, мм
800x800x1900
Масса, кг
299
