Характеристики
Рабочее напряжение, В
—
6000(10000)
Серия камеры
—
КРУН СВЛ
Схема исполнения
—
ПАВР
Тип релейной защиты
—
Электромеханика
Схема исполнения, назначение
—
Пункт секционирования линий с двухсторонним питанием с АПВ
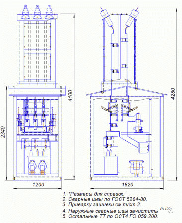
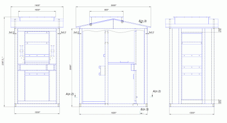
Габаритные размеры ДхШхВ, мм
—
1820x1200x4280
Все характеристики
Нашли дешевле?
Наличие уточняйте у наших менеджеров
Характеристики
Рабочее напряжение, В
6000(10000)
Серия камеры
КРУН СВЛ
Схема исполнения
ПАВР
Тип релейной защиты
Электромеханика
Схема исполнения, назначение
Пункт секционирования линий с двухсторонним питанием с АПВ
Габаритные размеры ДхШхВ, мм
1820x1200x4280
Масса, кг
3800
