Потери Х.Х., Вт - 2150
Потери К.З., Вт - 8800
Напряжение К.З. при 75°С, % - 8,0
Корректированный уровень звуковой мощности, дБА - 74
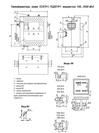
Размеры по чертежу:
L, мм=2120
B, мм=1360
H, мм=2130
A, мм=820
H1, мм=1720
H2, мм=1000
b, мм=360
f, мм=50
E, мм=30
Потери К.З., Вт - 8800
Напряжение К.З. при 75°С, % - 8,0
Корректированный уровень звуковой мощности, дБА - 74
Размеры по чертежу:
L, мм=2120
B, мм=1360
H, мм=2130
A, мм=820
H1, мм=1720
H2, мм=1000
b, мм=360
f, мм=50
E, мм=30
Документы
9028f89ba66e4be9fa6506f0e4c2d017
99,4 кб
Мощность трансформатора, кВА
1000
Схема соединения обмоток
Д/Ун-11
U перв. обмотки, В
10000
U втор. обмотки, В
400
Количество фаз
3
Материал обмоток трансформатора
Al
Габаритные размеры ДхШхВ, мм
2120х1360х2130
Масса, кг
2800
